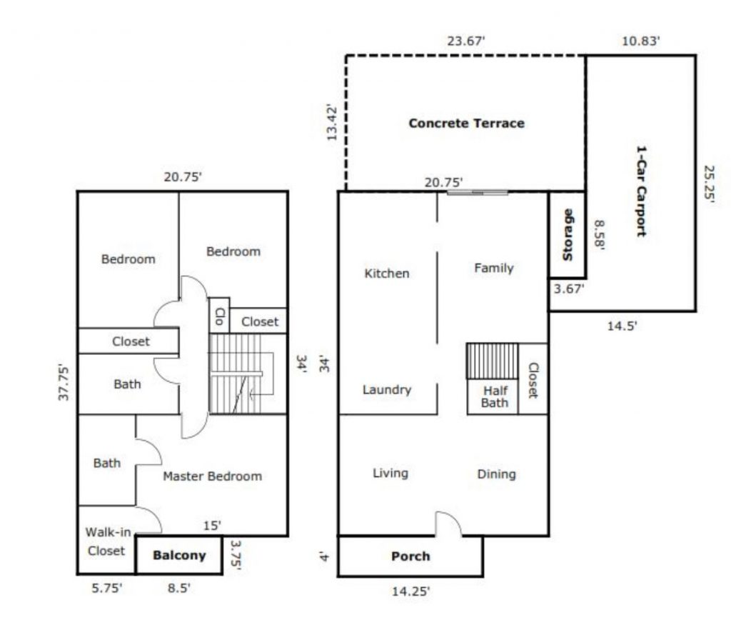
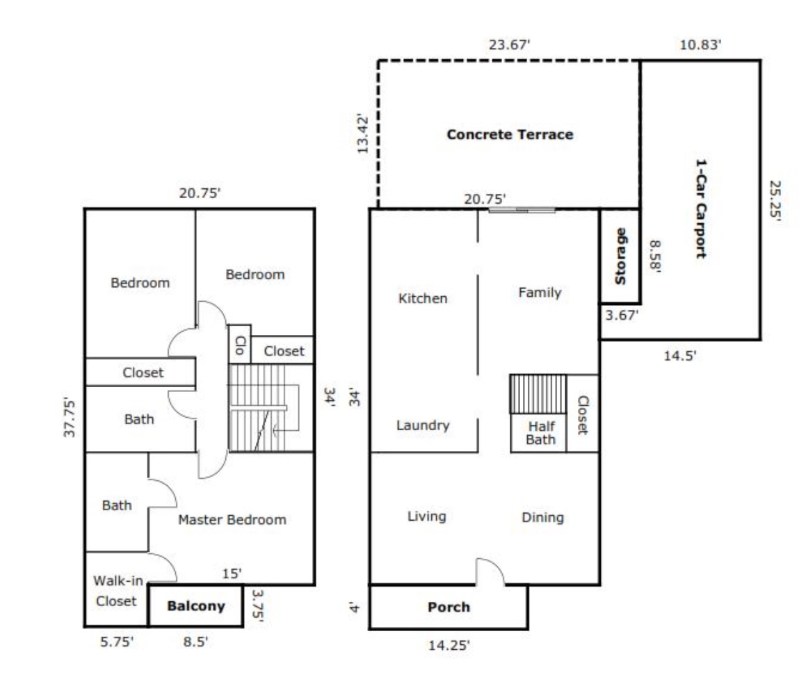
PRONTO DISPONIBLE – EL PLANTÍO, TOA BAJA Precio de alquiler: $1,600 mensuales Corredora: Maritere Vázquez 787-447-9559 / 787-269-2488 Excelente oportunidad en una de las zonas más convenientes de Toa Baja. Hermosa residencia de esquina completamente remodelada, con una distribución cómoda y moderna: 3 habitaciones, 2.5 baños, sala, comedor, cocina, walk-in closet en la habitación principal, terraza techada, marquesina y driveway con espacio para tres vehículos. La propiedad cuenta con un amplio patio verjado y se alquila equipada con nevera, estufa de gas, calentador, lavadora, secadora y dos mini splits en las habitaciones. La urbanización ofrece acceso controlado y fácil conexión a la autopista. Disponible a partir de diciembre de 2025. Requisitos básicos: • Contrato mínimo de 1 año • Mes por adelantado • Mes de fianza • Póliza de Responsabilidad Pública • Lease Bond • Verificación de crédito Más de 30 años de experiencia nos distinguen por nuestro servicio profesional y comprometido. L. #E-339