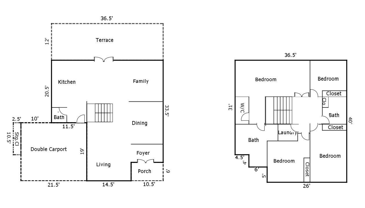
ALQUILADA! – Encantada, Corrientes | Trujillo Alto Precio de renta mensual: $2,975 Presentamos esta elegante y remodelada residencia disponible para alquiler en la prestigiosa comunidad de Encantada – Corrientes en Trujillo Alto. La propiedad cuenta con 4 amplias habitaciones y 2 ½ baños, ofreciendo un balance perfecto entre estilo, comodidad y eficiencia energética. Su diseño integra sala, comedor, moderna cocina, family room y terraza con acceso a un patio ideal para el disfrute en familia o el descanso. La residencia dispone además de un garaje doble y está equipada con placas solares, cisterna, 4 inverters tipo split, nevera, estufa, calentador solar y abanicos de techo. Ubicada en una comunidad reconocida por su seguridad, tranquilidad y conveniencia, esta propiedad representa una oportunidad única de vivir con la calidad de vida que usted merece. Requisitos básicos: contrato mínimo de un año, mes por adelantado, mes de fianza, verificación de crédito, póliza de responsabilidad pública y Lease Bond. Para más información o coordinar una cita, comuníquese con Edwin Francisco Rivera al 787-530-2488 o 787-269-2488. L. #E-339